MAITRE D'OUVRAGE :
Monsieur Duc Duong
PROGRAMME :
maison individuelle urbaine - transformation d'un entrepôt en habitation en ville dense
ÉQUIPE :
Architectes : Philippe VILLIEN, Vanessa FERNANDEZ et Nicolas GROSMOND - BET structure : EVP ingénierie - David CHAMBOLLE Ingénieur
PARTENAIRES :
Buitink Technology pour les bulles en ETFE, Highpoint Structures pour le suivi, Charroin Toitures, Bruno Duteuil Menuisier, Moneron maçonnerie.
MISSION :
maîtrise d'oeuvre complète
SURFACE :
70 m² utiles.
COÛTS :
/
DOCUMENT :
MEMOIRE_FINAL.pdf
LIENS EXTERNES :
www.buitink-technology.com/uk/projects/etfe-air-cushion-roof-in-lyon/
www.bellastock.com/blogbellastock/?p=406
THÈME :
hybride
MOTS CLÉS :
hightech, coeur d'îlot, couleurs, jungle, hybride, membrane ETFE, énergie, lauréat prix d'architecture Epri d'Architecture,écologique
La réalisation de cette « maison Duong 2 » à Lyon relève d’un véritable laboratoire, d'une recherche par le projet appliquée aux matériaux. Une première maison réalisée sur le boulevard a obtenu l’un des prix de la Ville de Lyon (“Epri d’Architecture en 2006). Le même maître d’Ouvrage, Monsieur Duong, réitère sa démarche courageuse et creative avec le même architecte. Le sujet est complexe : sur une base construite dans les années 1930 à l’arrière de sa parcelle un ancien entrepôt est à transformer en deuxième maison individuelle. Le programme de l’habitation se développe cette fois-ci franchement à l’horizontale en cœur d’îlot complètement enclavé. Aussi le projet est conçu comme une réponse synthétique à des questions posées simultanément à plusieurs échelles. Les échelles pertinentes sont celles de la parcelle - enclavée, « aveuglée » - celle de lîlot - « triangulaire » - celle de la toiture elle-même, avec sa « toiture gonflable en membrane ETFE » de fabrication hollandaise.
Echelle 1 : l’îlot
Ce projet est expérimental dans le sens où nous cherchons à renouveler les possibilités d’habiter offertes par les constructions horizontales en coeurs d’îlots. Une créativité pacifique émane de cette maison tapie au cœur de l’îlot. La maison devient la nuit une lampe diffusant une douce présence insolite. In fine un nouveau milieu est désiré : une fertilité, une souplesse, une animation douce du quotidien sont les nouvelles qualités revendiquées dans l’intimité de la ville dense. Ainsi réhabiliter les cœurs d’îlots en secteur patrimonial est une situation à refonder, repenser à partir des nouvelles bases environnementales. La richesse de la ville est absolument ancrée dans ces innombrables lieux privés, d’accès limités qui façonnent notre quotidien : de multiples occasions créatives trouvent là leur terreau. Le projet va le plus loin possible dans cette voie créative associant en une solution technique innovante un art de vivre à une ambiance collective sereine.
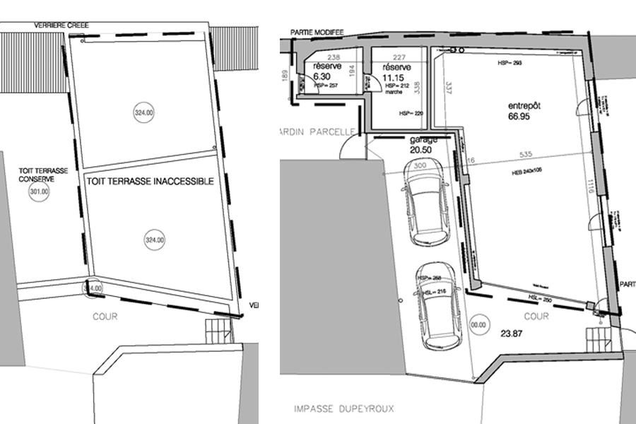
Echelle 2 : la parcelle
La maison se situe sur la partie arrière d’une parcelle en lanière partant du boulevard de la Croix-Rousse, aboutissant à l’équerre sur l’impasse Dupeyroux. Comme pour de nombreuses voies privées les droits à bâtir en en cœur d’îlots sont strictement limités par le PLU dans un velum de quasi rez-de-chaussée. La situation réglementaire est simple : démolir revient à annihiler les possibilités de rebâtir. Il nous faut donc réhabiliter en conservant la structure et les baies existantes. Mais le programme, une maison avec deux chambres, est difficile à installer pour obtenir des vues satisfaisantes. Le projet vise donc à supprimer tout effet d’enfermement en multipliant les vues profondes, diagonales, et surtout en maximalisant les vues en contre-plongée vers le ciel.
Echelle 3 : la toiture gonflable « européenne »
La toiture terrasse en béton d’origine a donc été grignotée, démolie et remplacée par une toiture matérialisant une nouvelle manière d’être. La toiture est au maximum transparente, avec de grandes bulles en membranes ETFE. Un motif règle le délicat équilibre entre l’intimité de la maison, la lumière naturelle recherchée en toutes saisons, la protection solaire. La sensation de vivre dans un sous-bois est l’effet recherché. Des « bulles respirantes » avec leur texture « jungle » deviennent l’alternative à la lourde verrière et ses screens. La géométrie prismatique autorisée par ces bulles permettent d’optimiser le volume habitable intérieur et offrir un délicat pliage aux vues plongeantes de ce coeur d’îlot. La construction en filigrane est ici assumée avec une rassurante charpente en lamellé collé reprenant les fortes tractions des bulles.
La situation très enclavée de la maison explique la nature insolite de ce toit, les ouvertures en façade étant limitées par le garage et la mitoyenneté sur deux côtés. Cette toiture résout de multiples contraintes: apporter la lumière et contrôler la chaleur, créer un volume suffisant pour y placer une mezzanine. Sa forme à quatre versants dissymétriques dégage une ouverture triangulaire sur la terrasse, et adapte la couverture aux orientations, afin de limiter les apports solaires d'été. D'un côté de la grande diagonale, le toit est plein, couvert de bac acier. De l'autre côté, la forme complexe et la conservation des murs existants nous mènent à une solution unitaire pour toute la surface en trois bulles gonflables – une verrière sur une surface gauche n'étant pas envisageable.
Le choix de la toiture gonflable en ETFE de « Buitink Technology », basé aux Pays-Bas, s’est vite imposé, étant les rares fabricants et poseurs européens s'intéressant à des projets innovants de toute petite taille. Le suivi a été fait par High Point Structure. Le BET EVP – David Chambolle a dimensionné la structure en lamellé-collé et son chaînage périphérique. La “bulle” permet, par sa légèreté, de conserver les murs périphériques en béton de mâchefer. Le résultat est un surprenant mélange de technique innovante – venue directement de l’ingénierie des structures légères – et de savoir-faire traditionnel. Ce système de toiture rappelle les doubles-verrières ventilées du 19ème siècle. La double couche d'air permet de limiter les déperditions (1,96 W/m²), malgré les convections, et de contrôler la chaleur en été en renouvelant l'air ce qui l'empêche de s'échauffer excessivement. La condensation intérieure est évitée grâce à un déshumidifcateur. Le confort d'été est également amélioré par la ventilation transversale et les ouvrants en partie haute du volume intérieur. Depuis la mise en place en 2008 l'ouvrage est dans un bon état, il a nécessité une opération d'entretien en 2016 effectué par High Point Structure.
Le plafond en filigranes dorés
L'inclinaison des pans de toitures et le motif sérigraphié de la membrane gonflable contrôlent la lumière, l’ensoleillement et la température intérieure. Grâce à des maquettes, des modélisations 3D et des calculs avec le logiciel CODYBA (comportement dynamique des bâtiments), élaboré par Jean Noel, Chercheur à l'INSA de Lyon, le résultat a été patiemment optimisé. La triple couche de feuilles d'ETFE permet à la fois un coefficient de déperditions proche de celui du double vitrage. Le jeu subtil du décalage des motifs permet de filtrer les rayons lumineux. L’impression que nous recréons est celle d’un arbre, qui projette l’ombre de son feuillage, comme les platanes du boulevard de la Croix-Rousse en automne, ce qu’évoque la couleur dorée des motifs. Le résultat, très présent visuellement, évoque aussi un pelage animal... Ces effets lumineux au quotidien, se font oublier et les réfractions lumineuses, légèrement dorées deviennent source de poésie.
L’agencement des volumes et des usages intérieurs
L'aménagement repose sur une mezzanine - développant là le thème du « gros meuble ». Le plancher est très fin, formé de panneaux porteurs " Boucaud " laissés bruts. L'escalier économise la place et condense le rangement. La géométrie du cloisonnement adoucit les angles pliés de l’existant. Les découpes complexes des plafonds et des parois favorisent un sensation kaléidoscopique accentuée par le jeu des couleurs des parois.