ACCUEIL
ACTUALITÉS
A PROPOS
L'ÉQUIPE
LIEU ET MOYENS
ILS NOUS FONT CONFIANCE
LES ACTIVITÉS
ISA1 AMO
ISA2 MOE
ISA3 IDÉES
ISA4 FORMATION
ISA5 DIFFUSION
ISA6 DATA
ISA7 RECHERCHE
PAYSAGE
NUMÉRIQUE
RECHERCHE
ÉCOLOGIQUE
URBANISME
PRENDRE SOIN
PV045 1995
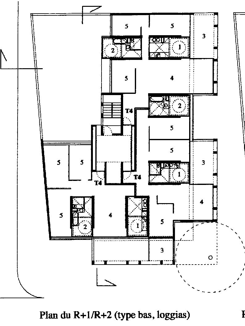
Immeuble rue des Lyanes à Paris - 20ème
Paris - Ile-de-France
ISA2
MOE