ÉCOLOGIE
PV122 2008
Maison Cressot Gonon à Antony - 91
laboratoire architectural : insertion écologique d'extension de maison dans le pavillonnaire - Antony - Ile-de-France
MAITRE D'OUVRAGE :
privé
PROGRAMME :
Extension d'une maison de ville existante en meulière début de siècle par un séjour et une chambre et salle de bains à l'étage + 73 m2
ÉQUIPE :
Philippe Villien, Architecte et Delphine Désert Architecte DPLG - junior architecte - puis avec Atelier A+I Architectes
PARTENAIRES :
Atelier A+I Architectes
MISSION :
Complète avec opc
SURFACE :
extension 73 m2
COÛTS :
145 000 euros
THÈME :
mesure
MOTS CLÉS :
maison écologique, bois, extension pavillonnaire, angle,écologique
Maison écologique : toiture plantée, façade et ossature bois, poêle à bois, ...
Cible projet : budget maîtrisé : 145 000 euros et pas un de plus, du programme à la réalisation.
Certes le délai de réalisation en a été impacté : durée du chantier plus longue due à des défaillances d'entreprises, qui ont été remplacé sans surcout.
Un contexte très contraint
Le projet à optimiser le volume construit en fonction des règles d'urbanisme du PLU d'Antony. L'adossement à l'héberge du voisin s'est fait avec la prise en compte précise des ouvertures existantes dans le pignon. Le raccord avec la construction existante se situe juste sous la toiture existante ce qui engendre des détails d'une grande précision. La construction d'un nouvel accès à la cave a permis de régler les infiltrations récurrentes.
Globalement le programme est celui d'une actualisation : cette maison de famille doit devenir enfin celle d'un couple avec un enfant. La maison construite par le grand-père avec les critères de l'époque a besoin pour être pérennisée dans le patrimoine de la famille d'être assumée en tant que tel en la ramenant dans les pratiques et l'esthétique de notre XIX siècle. Nous avons associé franchement une architecture contemporaine à l'ancienne maison.
Cette maison devient contemporaine par l'expression de son enveloppe simple mais sophistiquée : une découpe savante sur l'angle principal avec une baie généreuse confère au volume une force décuplée.
Les matières de l'extension sont assorties entre elles et entrent en correspondance avec celles de la maison d'origine. Ainsi les briques en soubassement et en décor ponctuel, l'enduit existant en crépi homogène, les tuiles de rives en terre cuite au dessin fort élégant, tous ces matériaux traditionnels ont été mis en oeuvre avec finesse au début du XXème siècle.
Ces matériaux sont soulignés par les choix de ce début du XXIème siècle : un bardage bois vertical avec un rythme irrégulier, en contraste avec les menuiseries grises fines et efficientes, une toiture végétalisme avec une végétation rase et persistante, avec des sédums.
Cette extension densifie le tissu pavillonnaire en augmentant l'emprise au sol et le volume bâti. Cette démarche à la BIMBY (1) permet de faire évoluer la ville dans ses richesses cachées et sa diversité, en augmentant l'identité des lieux, en écho à nos modes de vie contemporains. Le territoire de la ville a ainsi un "pluriel de charmes" développé par de multiples "principes de délicatesse".
(1 On pourra se reporter à la recherche actuelle sur la densification du tissu pavillonnaire pour un urbanisme durable : http://bimby.fr/ )
th1 VILLIEN : vue depuis le jardin : l'extension de la maison est réalisée en construction bois
th1 VILLIEN : les briques de la maison existante sont présentes à l'intérieur et les espaces sont traversants entre le jardin avant et arrière.
th1 VILLIEN : matériaux et volumes : l'angle de la maison existante arbitre les séquences intérieures. Le nouveau séjour est vaste et très ouvert sur le jardin
th1 VILLIEN : la façade de la maison existante intégrée dans l'intérieur de l'extension
th1 VILLIEN : les détails des menuiseries, bois à l'intérieur et aluminium à l'extérieur : comment concilier le confort et l'entretien
th1 VILLIEN : une vue générale de la parcelle : la maison existante, l'extension, le jardin à l'arrière, très profond
th1 VILLIEN : l'état existant avant l'extension depuis le jardin, un pavillon soigné, construit en meulière
th1 VILLIEN : le projet simulé en phase de permis de construire, agrandir en s'ouvrant largement sur le jardin
th1 VILLIEN : cette maison bénéficie d'un contexte très divers et marqué par de forts contrastes : le parc de Sceaux et la Francilienne
th1 VILLIEN : la maison est inscrite dans un parcellaire historique déjà ancien, des années 1920, avec des parcelles étroites et profondes.
th1 VILLIEN : depuis la rue la façade principale est soignée avec ses détails de débords de toits et de maçonnerie de briques et de meulières
th1 VILLIEN : il nous faut faire une maquette pour apprécier les volumes nouveaux par rapport aux anciens
th1 VILLIEN : les plans au stade du Permis de Construire sont bien détaillés pour stabiliser le projet dans cette étape cruciale.
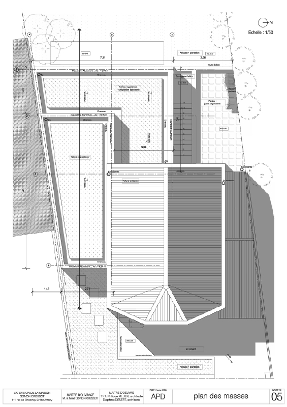
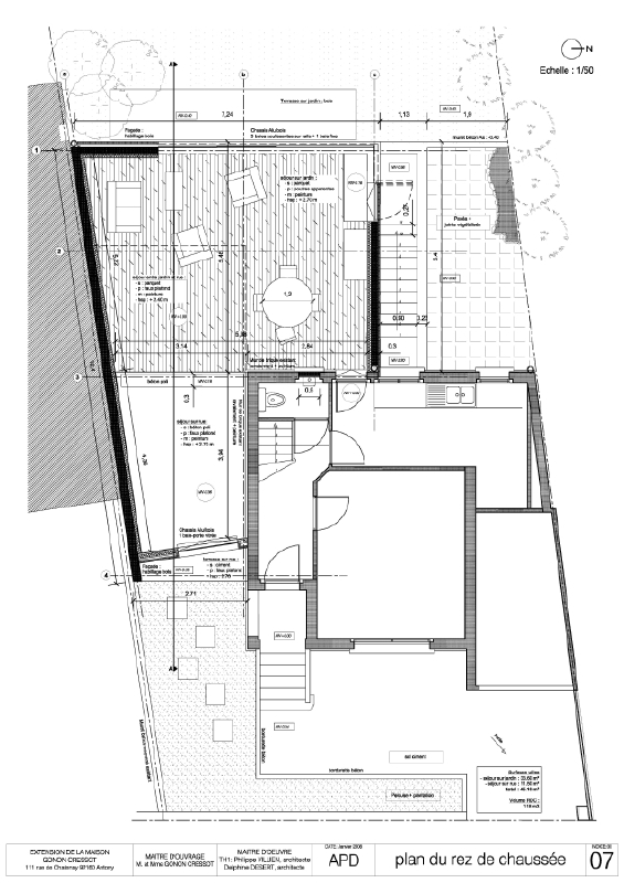
th1 VILLIEN : plan de Rez de chaussée pour la phase des plans techniques - beaucoup de précisions nécessaires pour anticiper les interfaces entre les lots des entreprises
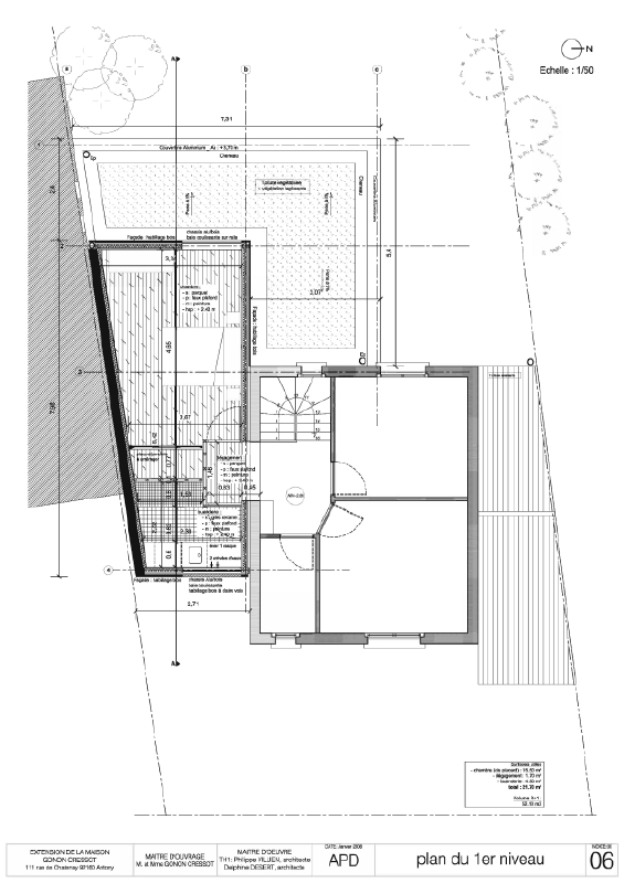
th1 VILLIEN : plan de l'étage pour la phase des plans techniques
th1 VILLIEN : les coupes permettent de prévoir finement les raccords avec l'existant, les détails qui assurent une enveloppe bien coordonnée et élégante
th1 VILLIEN : plan des toits. Particulièrement important dans ce projet : les contrastes des toits, terre cuite, plantés ...
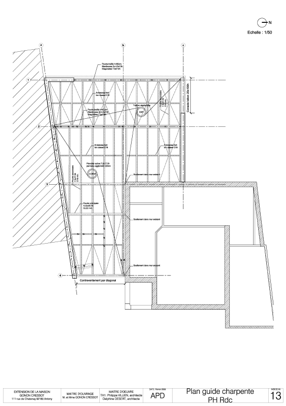
th1 VILLIEN : plan de l'ossature du plancher bois. Un travail en amont du choix de l'entreprise pour maîtriser les épaisseurs induites.
th1 VILLIEN : des vues fabriquées avec des logiciels 3D pour apprécier les futures ambiances intérieures. Ce n'est pas forcément ce qui va être réalisé et vécu !
th1 VILLIEN : Delphine Désert l'architecte associée à ce projet, en action.
ISA2
MOE