ÉCOLOGIE
PV153 2011
Maison bois passive à Ronquerolles - 95
laboratoire architectural : Réalisation d'une maison écologique, passive et saine - Ronquerolles - 95 - Ile-de-France
MAITRE D'OUVRAGE :
Monsieur et Madame Meaume
PROGRAMME :
maison individuelle pour retraite à la campagne
ÉQUIPE :
Philippe Villien, Architecte et Guillaume Bruneau Architecte Junior
PARTENAIRES :
ARCA MINORE Pierre-Gilles Bellin : thermique et économie; SCOP FIABITAT CONCEPT – Ingénierie Ecologique : performance énergétique, test BBC étanchéité à l'air
MISSION :
Maîtrise d'oeuvre complète. TH1 junior à partir de l'APD
SURFACE :
113 m2 habitable - 154 m2 shon
COÛTS :
239 000 euros
LIENS EXTERNES :
guillaumebruneauarchitecte.wordpress.com/2012/10/24/pv-153/
THÈME :
énergie soutenable
MOTS CLÉS :
BBC,air,bois,périurbain,maison passive,écologique
Maison d’anticipation pour un couple de retraités et leur enfant. Dans le parc naturel du Vexin, la famille Meaume à choisi de s’installer à la campagne, à proximité d'une petite ville en situation périurbaine.
Entreprises : BOITE A BOIS Yves Letexier (ossature bois, menuiserie ext., bardage) _Jean-Max Muzzulini Maçonnerie (fondations) _ Ets PARAUD (couverture) _ RD THERMIC (plomberie, récuperation eaux de pluies, VMC double flux) _ Christian Cahuzac ( électricité bio-compatible)
th1 Villien maison bois : assembler 2 volumes - base et toit
th1 Villien maison bois : les volumes neutres
th1 Villien maison bois : les volumes habillés avec différentes matières- bois - terre cuite - végétal
th1 Villien maison bois : les volumes habillés avec différentes matières - bois - terre cuite - végétal
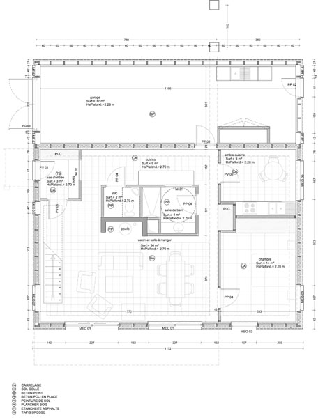
th1 Villien maison bois : plan rez de chaussée
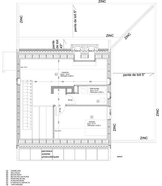
th1 Villien maison bois : plan de l'étage
th1 Villien maison bois : coupe sur les 2 volumes
th1 Villien maison bois : façades - volumes extrudés
th1 Villien maison bois : détail de construction débord du toit
th1 Villien maison bois : vue depuis la rue - variations végétalisation de la toiture
th1 Villien maison bois : croquis des idées générales - horizon et assemblage
th1 Villien maison bois : depuis la rue, perspective biaise sur l'entrée
th1 Villien maison bois : depuis le jardin
th1 Villien maison bois : façade nord - grise côté rue
th1 Villien maison bois : côté terrasse - au Sud - débord de toit pour protection en été - implantation future des capteurs photovoltaïque
th1 Villien maison bois : façade entrée - côté Ouest - découpe des volumes
th1 Villien maison bois : depuis la rue - skyline
th1 Villien maison bois : matériaux tuiles terre cuite grise et bois - mélèze
th1 Villien maison bois : matériaux sains : laine de bois
th1 Villien maison bois : volume des combles en cours de chantier
ISA2
MOE