ISA2005 2023
Résidence Raspail à Alfortville
Rénovation d'une maison année 30 en Co-living - Alfortville - Ile de France - France
PROGRAMME :
Résidence de co-living
ÉQUIPE :
Villien Architecte Urbaniste
MISSION :
Rénovation d'une maison des années 30
THÈME :
Rénovation écologique
MOTS CLÉS :
Ecologie, Rénovation, Co-living, Années 30
Rénovation d'une maison individuelle en Co-living.
L'ambition de ce projet est de créer une résidence de co-living organisée autour de la culture, de l'art et plus particulièrement de la musique. La mission d'ISA va de l'esquisse au DOE.
La rénovation de la maison se fait par le prisme écologique dans le choix des matériaux (chanvre, paille) pour l'isolation thermique du bâtiment, ainsi que le réemploi de matériaux existants déjà présents sur site.
L'analyse thermique du bâtiment est également prise en charge et permets de tester l'utilisation d'une calculette carbone pour analyser l'impact écologique de la rénovation.
Maison des années 30 - vue depuis la rue Raspail
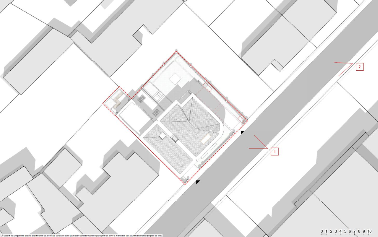
Plan masse ombré de la maison - état projeté
Maquette numérique du projet - état projeté
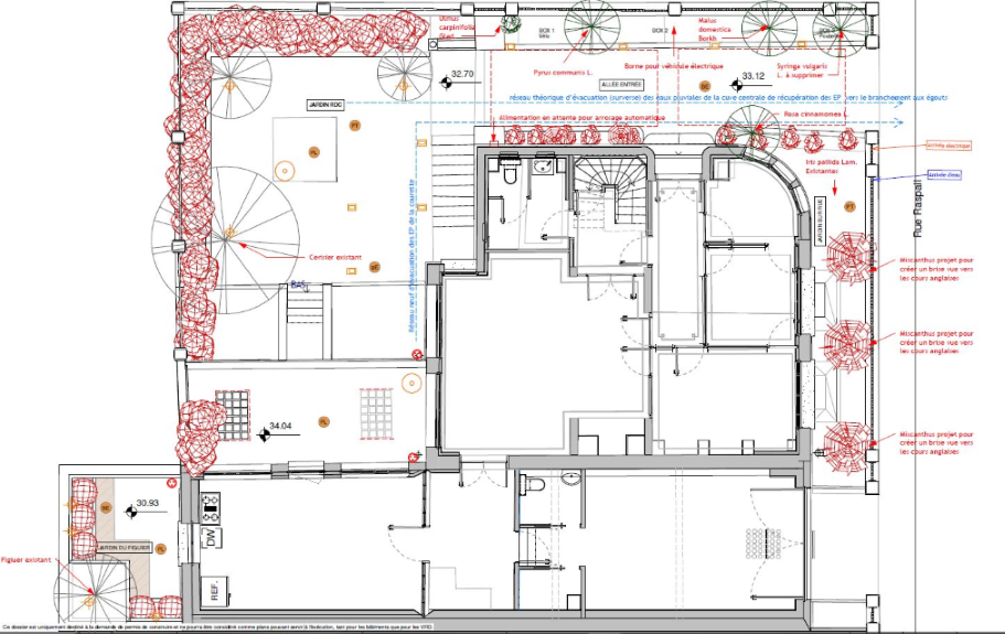
Plan des espaces exterieurs - espèces végétales conservées et déplacées
Coupe perspective - représentation des travaux de rénovation en bleu
Extrait du permis de construire - Abaissement de la terrasse
ISA2
MOE