ACCUEIL
ACTUALITÉS
A PROPOS
L'ÉQUIPE
LIEU ET MOYENS
ILS NOUS FONT CONFIANCE
LES ACTIVITÉS
ISA1 AMO
ISA2 MOE
ISA3 IDÉES
ISA4 FORMATION
ISA5 DIFFUSION
ISA6 DATA
ISA7 RECHERCHE
PAYSAGE
NUMÉRIQUE
RECHERCHE
ÉCOLOGIQUE
URBANISME
PRENDRE SOIN
ARCHITECTURE
BIOCLIMATIQUE
PRENDRE SOIN
PV120 2007
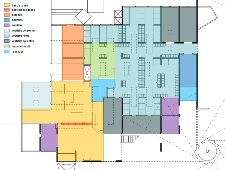
Piscine à Caen
THÈME :
corps, réhabilitation
MOTS CLÉS :
prendre soin, corps
ISA2
MOE