MAITRE D'OUVRAGE :
Maîtrise d'Ouvrage privée
PROGRAMME :
3 "habitations" : un logement du gardien, un gite, un atelier et un dortoir. Maçonnerie de pierre existante et charpente conservée, curage du sol et aménagement entier des volumes intérieurs
ÉQUIPE :
Philippe Villien architecte urbaniste - Fiabitat BET VMC
PARTENAIRES :
Entreprises : Boite à Bâtir (maçonnerie, charpente, isolation, cloisonnement), Minault Despretz Plomberie, Proust Electricité
MISSION :
Conception complète, suivi du chantier. Particularité : étalement des travaux sur 6 années.
SURFACE :
Environ 260 m2
COÛTS :
Réparti entre 2012 et 2015
THÈME :
écologie, matériaux sains,mémoire, phasage longue durée, recyclage, réemploi menuiserie
MOTS CLÉS :
matérialité, réhabilitation patrimoine, pierre, isolation chanvre, matériaux sains, vmc double flux,écologique
Le projet d’une économie partagée – 18 juin 2013
La « négociation raisonnée » de trois maisons
Une technique de pointe enseignée dans les lieux intellectuels les plus pointus de la planète se nomme la « négociation partagée ». La cliente et instigatrice du projet la connaît. Elle l’utilise et inspire ses partenaires. Même quand elle réhabilite son domaine.
Nous avions fait, il y a déjà quelques années, une recherche sur la négociation dans le cadre d’un programme du PUCA sur les rouages méconnus et fertiles de la négociation en projets urbains sur des cités jardins aux fortunes diverses. Les jeux d’acteurs décortiqués, les paroles des unes et des uns, des autres et de chacun restituées précisément.
Ici il s’agit d’un projet d’architecture. Dans lequel la négociation joue nécessairement un rôle central. Il s’agit pour l’architecte d’engager des processus qui dépasseront nécessairement chacun.
La durée du chantier, exceptionnellement longue – 4 années – le tissu local des entrepreneurs exceptionnellement motivés par la qualité de leurs réalisations, le désir de la maîtrise d’ouvrage de discuter des décisions les plus fines, l’exigence de l’architecte sur la qualité de la lumière naturelle, l’éloignement relatif de certains acteurs (architecte, cliente) … cet ensemble concoure ici à une qualité partagée, un enrichissement mutuel par l’apport de chacun.
Le but est que chacun avec ses intérêts à priori divergents soit impliqué dans une « négociation raisonnée ».
L’un des premiers principes de cette négociation est de reconnaître les qualités, les potentiels de chacun.
Le savoir faire des artisans sont très divers et ils doivent travailler ensemble.
Ces artisans représentent un microcosme traversé par les contradictions globales, mais ici les rapports sont comme apaisés. Les artisans de la mémoire longue sont ceux de la maçonnerie en pierre et de la charpente traditionnelle en chêne, celle des enduits épais et respirants, mais aussi ceux la maçonnerie écologique, de l’isolation en bloc de chanvre. Les aspirations des « néo ruraux » sont ici bien présentes : esprit collaboratif, gout de la marge et de l’autonomie, engagés dans une économie frugale mais et créant de la richesse immatérielle : celle engendrée par des rapports humains apaisés, harmonieux et festifs.
Mais dans ce monde rural en pleine transformation il existe une grande diversité de postures professionnelle et humaine, qui coexistent sans conflit. Ainsi d’autres artisans sont instruits par les bienfaits de l’industrie, ceux de l’électricité organisée et bien positionnée, de la plomberie bien dissociée et connectée, de la ventilation bien économe et saine. Les performances sont techniques à concevoir, puis complexes à approvisionner enfin leurs mises en œuvre demandent de la patience et de l’intelligence d’adaptation.
Un ballon d’eau chaude solaire mutualisé, deux réseaux de vmc double flux, un caniveau technique au sol équipe ce bâtiment pour une longue durée de service, dans des conditions soutenables.
Une matérialité forte
Mais ce qui touche à la visite des lieux c’est la puissance de la matérialité.
L’aspect extérieur rustique et nu accueille avec douceur, avec des enduits patinés. Les vieilles pierres, réactives et lentes sous le soleil et le gel, édifient de grands murs peu percés. Ce qui laisse présager des lieux obscurs et protégés.
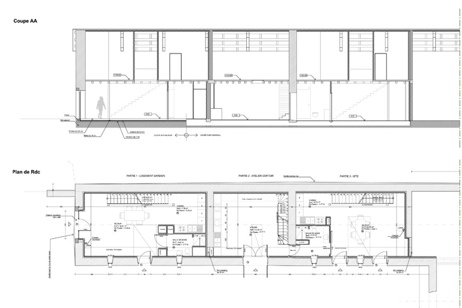
Les percements de ces communs, d’anciennes étables composent trois ensembles symétriques, correspondant aux trois maisons.
Lumières intérieures
Depuis l’entrée dans l’un des compartiments on est frappé par la matière et la lumière naturelle abondante venant du haut. Ou plutôt ce qui interroge ce sont les contrastes temporels. Les fermes aux pièces de bois noircis accrochent la lumière dans l’ombre sous les rampants de la toiture. Les voliges de la toiture sont encore visibles : plus pour longtemps, un lambris en lames de peuplier les remplacera dans les chambres.
Trois grandes fenêtres de toit, une par maison, verticalisent une lumière abondante. De grandes ombres biaises varient avec les heures de la journée dans la double hauteur centrale de chaque maison. Les petites ouvertures des anciennes étables sont libérées de la nécessité d’éclairer et ainsi rendues à un désir de voir la cour commune.
Les planchers sont fortement nervurés : les poutres en bois, chêne, puis sapin, manifestent leur section quasi carrée. Cette indifférence à la performance est comme réveillée par la forte hiérarchie de la superposition des pièces massives : poteau de 40 cm de côté, poutre en chêne de 40 cm par 30 cm : ces formats inhabituels manifestent étrangement leur complémentarité avec l’industrie du lamellé collé. Ici la conception « traditionnelle » de la charpente n’est pas une restitution historique mais une croyance encore vivante d’un artisan, qui observe les bâtisses traditionnelles et s’en inspire.
Les murs anciens sont respectés, la nouvelle charpente ne viole pas les appareillages anciens en cherchant ses nouveaux ancrages.
Les planchers montrent leur sous face en lame de châtaignier, les murs de chanvre sont recouverts par un enduit épais. Des encadrements de baies, de portes, en peupliers amortissent et assemblent les surfaces enduites en soulignant doucement les angles des volumes. Les proportions des pièces et des doubles hauteurs, étudiées longuement dans des maquettes préalables sont changeantes et appréhendables depuis beaucoup de point de vues. Ce sont des proportions dynamiques, invitant à la déambulation dans les paliers des étages.
Disposer le programme : des trois étables au trois maisons cote à cote.
Un bâtiment aux proportions liées à l’élevage des bovins. Dans les trois compartiments d’origine se trouvaient les étables avec de longues mangeoires contre le mur du fond sans aucune ouverture. Côté cour commune trois portes avec de grands volets et de petites ouvertures à hauteur de vue pour la ventilation et la surveillance. A l’étage sur un plancher supporté par des poutres s’étirant en une simple portée le stockage du fourrage et une porte fenêtre pour l’arrivée de la ressource depuis la cour.
Le sol est en terre battue, avec une pente générale pour évacuer la pisse de vache et les eaux de lavage, vers une fosse dans la cour.
Les murs sont imprégnés par la forte hygrométrie des lieux de sommeil des bovins, des longs hivers. Cette humidité est remontée dans les soubassements des murs avec des formations abondantes de salpêtre. Un enduit intérieur à la chaux était refait régulièrement pour assainir ces murs. Les formations de salpêtres sont ainsi peu développées.
Refaire le sol, enduire tous les murs intérieurs.
Le sol gorgé d’urine est à curer : excavé sur 40 cm cette épaisseur est remplacé par un hérisson, une membrane et un dallage béton général. La pente générale se transforme en deux plateaux avec un petit dénivelé. Un caniveau longitudinal contre le mur de la cour est ménagé pour structurer les flux dans la longue durée : canalisations d’eau potable, d’eaux usées et eaux vannes, alimentation électrique générale, filerie basse tension.
Ce caniveau reste accessible et couvert par de grandes planches de bois massif.
La poutraison du plancher de l’étage est déposée est entreposée dans la grange en attendant son réemploi pour les escaliers.
Les murs intérieurs ne sont guère étanches au vent. Une colonie de loir est découverte lors de la démolition des mangeoires. Il est décidé d’enduire tous les murs côté intérieur afin de parfaire l’étanchéité à l’air et d’assainir la vieille maçonnerie. Les entrées des rongeurs sont ainsi évitées.
Ventiler : d’une forte ventilation et la perméance
Avec ces étables à l’origine nous partons d’un bâtiment qui était très ventilé, avec des tirages naturels, par des dispositions de fenêtres créant des courants ascendants, t par une maçonnerie globalement perméable avec de nombreux interstices et un raccord entre mur et toiture largement ouvert sur toute la longueur. La conservation du fourrage et l’évacuation de l’humidité du corps des animaux demandaient une très forte ventilation continue. Les enduits intérieurs et extérieurs refaits régulièrement, mais pas toujours dans des délais suffisamment rapprochés avaient conservé une maçonnerie globalement en bon état.
Philippe Villien – 13 juin 2013